ID CP2664720

CERNICA - Km.19 - A2 cu pozitie exceptionala, vanzare 3.130 mp. teren in intravilan

ID CP2664720

78,250 €

Teren de 3,130 mp de vânzare
Cernica
3,130 mp

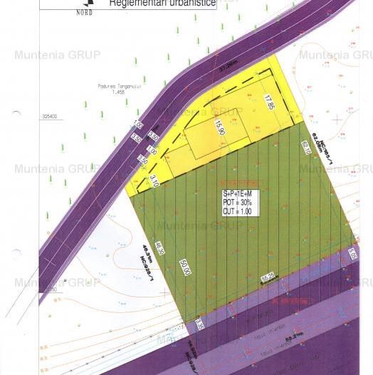
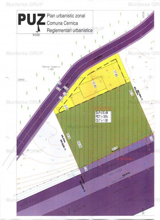
CERNICA km.19 - A2 - Autostrada Bucuresti - Constanta, vanzare 3.170 mp. teren situat in intravilan, cu deschidere stradala de 52 ml. ideal constructie: casa/ vila, Hotel, motel, restaurant, etc.

Avantajul major al acestui teren este faptul ca are o latura la padurea Tanganului si se poate ajunge la el prin breteaua existenta in zona Km. 19 (Politia Autostrazii A2) venind atat dinspre Bucuresti cat si de la Constanta si retur.

Citește mai mult

  • Tip teren
    Construcții
  • Suprafață teren
    3,130 mp
  • Front stradal
    52.0 m
  • Număr fronturi stradale
    2
  • Deschidere la
    Șosea
  • Clasificare
    Intravilan
  • Disponibilitate
    Imediat

Facilități

Curent
Străzi pietruite
GHEORGHE DASCALU
Manager

0735523505


Solicită chiar acum o vizionare
Telefon
Sună acum Solicită vizionare
Necesare:

Site-ul nu poate funcționa corect fără aceste cookie-uri. Vezi cookie-urile

Statistică:

Strângem statistici anonime despre voi, vizitatorii unici, pentru a vă îmbunătăți experiența dumneavoastră. Vezi cookie-urile

Marketing:

Pentru a ne promova mai eficient serviciile noastre, folosim cookies pentru a vă identifica și a vă oferi proprietăți și servicii personalizate. Vezi cookie-urile

Acest site folosește cookies, află detalii. Alege ce tipuri de cookies dorești să permitem: